新発田市舟入町1丁目 新潟県新発田市舟入町1丁目|2,200万円の中古一戸建て|株式会社green
| 価格 | 2,200万円 ![]() |
||||
|---|---|---|---|---|---|
| 所在地 | 新潟県新発田市舟入町1丁目
この地域周辺の物件を見る |
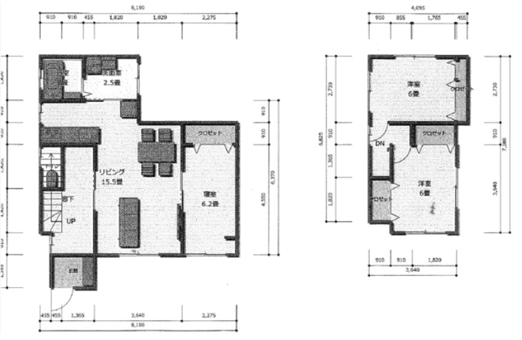
土地面積 | 165.33m² (公簿) (50.01坪) | 建物面積 | 86.8m2 |
| 築年月 | 1979年4月築 | 間取り | 3LDK (-) | ||
| 交通 |
JR白新線 西新発田駅 徒歩22分
|
||||
| 特徴 |
|
|---|---|
| セールスコメント | ◆◆アクセス◆◆ ○JR西新発田駅まで車で約6分! ○バス停「聖籠・新発田」まで車で約6分! ◆◆周辺環境◆◆ ○猿橋小学校…約950m ○猿橋中学校…約500m ○西園すこやか園…約450m ○イオンモール新発田…約1100m ○ウオロク コモ店…約800m ○ココカラファイン 新発田舟入店…約140m ○セブンイレブン 新発田舟入3丁目店…約1100m ○三浦内科医院…約800m ○新発田住吉郵便局…約850m ○JR西新発田駅…約1300m お気軽にお問合せください♪ |
| 採光面 | - | 構造/階数 | 木造/地上2階建 |
|---|---|---|---|
| 建ぺい率 | 60(%) | 容積率 | 200(%) |
| 駐車場 | - | 現況/引渡し | -/相談 |
| 土地権利 | 所有権 | 私道負担面積 | なし |
| 接道状況 | 接道: 南 公道 道路幅: 5.5m | 用途地域 |
第一種住居地域
|
| セットバック | なし | 法令上の制限 | - |
| 地目 | 宅地 | 地勢 | |
| 建築確認番号 | 都市計画 | 市街化区域 | |
| 取引態様 | 一般媒介 | ||
| 情報更新日 | 2026年04月20日 | 次回更新日 | 2026年05月04日 |
| 小学校区 | 新発田市立猿橋小学校 (新潟県新発田市) 新潟県新発田市立猿橋小学校学区の他の物件を見る |
中学校区 | 猿橋中学校 (新潟県新発田市) 新潟県新発田市立猿橋中学校学区の他の物件を見る |
|---|
| 価格 | 万円 | ||
|---|---|---|---|
| 年利率 | % |
||
| ボーナス払い | 返済年数 | ||
| 頭金 | 直接入力する | 万円 | |

毎月のご返済額 |
ボーナス(×年2回) |
物件価格2,200万円 |
※「ホームページを見た」と
お伝え下さい。
【物件番号:RHS-ko20250630】
お知らせ-TOPICS-
【令和7年5月リフォーム済】3LDK中古住宅
イオン等、商業施設も充実でお買い物に便利!!
前面道路5.5m、南側で日当たり良好!!
駐車スペース3台可能!!